Home
Halls
Salle Royal
Grand Salon
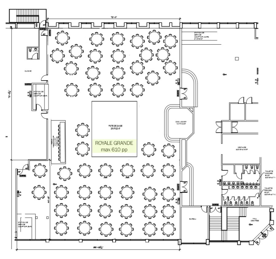
Royale Grande
Lobby
Packages
Promo
Estimate
Contact
Français
Royale Grande
Maximum Seated Capacity 650 Guests